
Ramatuelle, 83350
6 Chambres - 506 m2 intérieur
15 900 000 €
Découvrir4 515 000 €
Saint-Gély-du-Fesc, 34980
4 515 000 €
Saint-Gély-du-Fesc, 34980
Propriété d’exception avec vue mer et espace bien-être – Saint-Gély-du-Fesc
Dans le très prisé quartier des Vautes, à Saint-Gély-du-Fesc, cette propriété contemporaine en position dominante bénéficie d’un cadre naturel remarquable, à l’abri des regards, avec une vue dégagée sur la pinède jusqu’à la mer. À proximité des futurs Pics Studio, l’adresse conjugue tranquillité résidentielle et potentiel patrimonial.
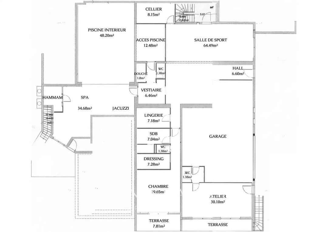
Implantée sur un terrain paysager de 3 300 m², elle se compose de deux villas indépendantes offrant un total de 750 m² habitables, des prestations haut de gamme et une capacité d’accueil idéale pour une grande famille ou des invités.
Villa principale – Environ 600 m²
Le rez-de-chaussée s’articule autour d’un vaste séjour de 100 m² avec cuisine ouverte signée PORCELANOSA, prolongé par une terrasse de 260 m² avec piscine à débordement et vue panoramique.
Une master suite de 45 m², trois chambres, deux salles d’eau et une buanderie complètent ce niveau.
En rez-de-jardin, place à la détente : espace SPA complet, piscine intérieure, hammam, jacuzzi, salle de sport, salle de réunion, bureau, trois chambres supplémentaires et un garage de 40 m².
Villa d’invités – Environ 150 m²
Totalement indépendante, elle propose une belle pièce de vie de 50 m², trois chambres, une salle de bain, une terrasse avec jacuzzi et un garage. Idéale pour recevoir confortablement ou loger du personnel.
Confort moderne et équipements premium
Domotique intégrale, système Hi-Fi, climatisation gainable, matériaux de standing… Chaque détail a été pensé pour conjuguer esthétique, technologie et sérénité.
Une propriété rare à quelques minutes de Montpellier, pensée pour les amateurs d’architecture contemporaine, de confort absolu et de tranquillité.
Contactez Yohan Bras pour organiser une visite privée.
36.2 kWhEF/m².an (Energie finale)
Diagnostic réalisé le 5 octobre 2022
Montant estimé des dépenses annuelles d'énergie pour un usage standard :
Entre 2300 € et 3130 € par an
Prix moyens des énergies indexés au 1er janvier 2021 (abonnement compris)
YOHAN BRAS répondra personnellement à votre demande, envoyez-lui un email
Appelez-nous : +33 (0)6 68 02 05 20














6 Chambres - 506 m2 intérieur
15 900 000 €
Découvrir
5 Chambres - 324 m2 intérieur
14 880 000 €
Découvrir
5 Chambres - 398 m2 intérieur
9 900 000 €
Découvrir
Propriété d’exception avec vue mer et espace bien-être – Saint-Gély-du-Fesc
Dans le très prisé quartier des Vautes, à Saint-Gély-du-Fesc, cette propriété contemporaine en position dominante bénéficie d’un cadre naturel remarquable, à l’abri des regards, avec une vue dégagée sur la pinède jusqu’à la mer. À proximité des futurs Pics Studio, l’adresse conjugue tranquillité résidentielle et potentiel patrimonial.
Implantée sur un terrain paysager de 3 300 m², elle se compose de deux villas indépendantes offrant un total de 750 m² habitables, des prestations haut de gamme et une capacité d’accueil idéale pour une grande famille ou des invités.
Villa principale – Environ 600 m²
Le rez-de-chaussée s’articule autour d’un vaste séjour de 100 m² avec cuisine ouverte signée PORCELANOSA, prolongé par une terrasse de 260 m² avec piscine à débordement et vue panoramique.
Une master suite de 45 m², trois chambres, deux salles d’eau et une buanderie complètent ce niveau.
En rez-de-jardin, place à la détente : espace SPA complet, piscine intérieure, hammam, jacuzzi, salle de sport, salle de réunion, bureau, trois chambres supplémentaires et un garage de 40 m².
Villa d’invités – Environ 150 m²
Totalement indépendante, elle propose une belle pièce de vie de 50 m², trois chambres, une salle de bain, une terrasse avec jacuzzi et un garage. Idéale pour recevoir confortablement ou loger du personnel.
Confort moderne et équipements premium
Domotique intégrale, système Hi-Fi, climatisation gainable, matériaux de standing… Chaque détail a été pensé pour conjuguer esthétique, technologie et sérénité.
Une propriété rare à quelques minutes de Montpellier, pensée pour les amateurs d’architecture contemporaine, de confort absolu et de tranquillité.
Contactez Yohan Bras pour organiser une visite privée.

36.2 kWhEF/m².an (Energie finale)
Diagnostic réalisé le 5 octobre 2022
Montant estimé des dépenses annuelles d'énergie pour un usage standard :
Entre 2300 € et 3130 € par an
Prix moyens des énergies indexés au 1er janvier 2021 (abonnement compris)
4 515 000 €








YOHAN BRAS
+33 (0)6 68 02 05 20
y.bras@bonaparte-artdevivre.com
https://yohanbras.com/
Non inclus dans le prix : frais de notaire (droits d’enregistrement). Document non contractuel établi d’après indications fournies par le propriétaire, il est fourni à titre indicatif sous réserve de confirmation des informations par documents administratifs ou contractuels respectifs, il ne saurait engager notre responsabilité.