
Vignieu, 38890
44 Chambres - 5000 m2 intérieur
13 000 000 €
Découvrir795 000 €
Saint-Raphaël, 83700
795 000 €
Saint-Raphaël, 83700
Au sein d’un écrin de verdure sécurisé, en plein cœur du très prisé secteur des Golfs de Valescure, découvrez Villa EmmaSwing, une adresse confidentielle pensée pour une clientèle en quête de calme, de standing et de qualité de vie.
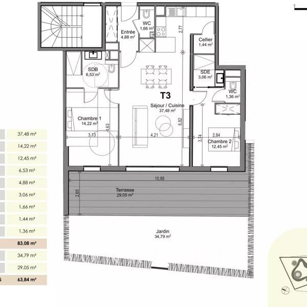
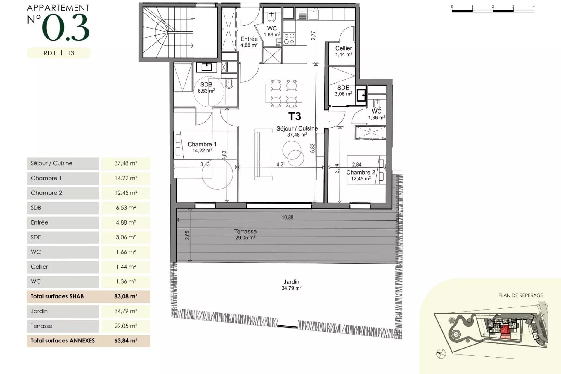
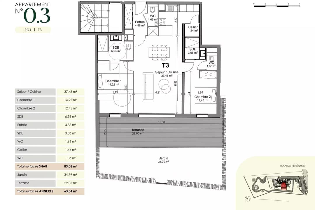
Ce superbe appartement 3 pièces de 83 m² en rez-de-jardin offre de magnifiques volumes, avec une pièce de vie lumineuse de plus de 37 m² ouverte sur un agréable jardin privatif de plus de 34 m², idéal pour profiter pleinement de l’extérieur dans un cadre naturel privilégié.
L’espace nuit se compose de deux véritables suites, chacune avec sa salle d’eau privative et ses toilettes, complétées par un WC invités pour plus de confort.
Villa EmmaSwing est une résidence exclusive de seulement 7 appartements haut de gamme, alliant l’esprit d’une villa individuelle à la praticité d’un appartement contemporain.
Chaque détail a été pensé pour offrir un art de vivre rare :
• Emplacement recherché au sein du Golf de Valescure
• Environnement paisible et verdoyant
• Résidence sécurisée
• Prestations premium et matériaux de qualité
• Accompagnement personnalisé par une décoratrice d’intérieur
• Équipements domotiques
• Stationnements haut de gamme : garage double carrelé avec porte motorisée
Un bien rare, idéal en résidence principale comme en résidence secondaire de standing, dans l’un des secteurs les plus prisés de Saint-Raphaël.
Dossier de présentation complet sur demande.
Le DPE sera fourni à l'achèvement de la construction.
Montant estimé des dépenses annuelles d'énergie pour un usage standard :
Entre 2025 € et 2025 € par an
Prix moyens des énergies indexés au 1er janvier 2021 (abonnement compris)
STEPHANE GAMBIRASIO répondra personnellement à votre demande, envoyez-lui un email
Appelez-nous : +33 (0)6 11 50 79 61









44 Chambres - 5000 m2 intérieur
13 000 000 €
Découvrir
5 Chambres - 398 m2 intérieur
9 900 000 €
Découvrir
8 Chambres - 520 m2 intérieur
6 980 000 €
Découvrir
Au sein d’un écrin de verdure sécurisé, en plein cœur du très prisé secteur des Golfs de Valescure, découvrez Villa EmmaSwing, une adresse confidentielle pensée pour une clientèle en quête de calme, de standing et de qualité de vie.
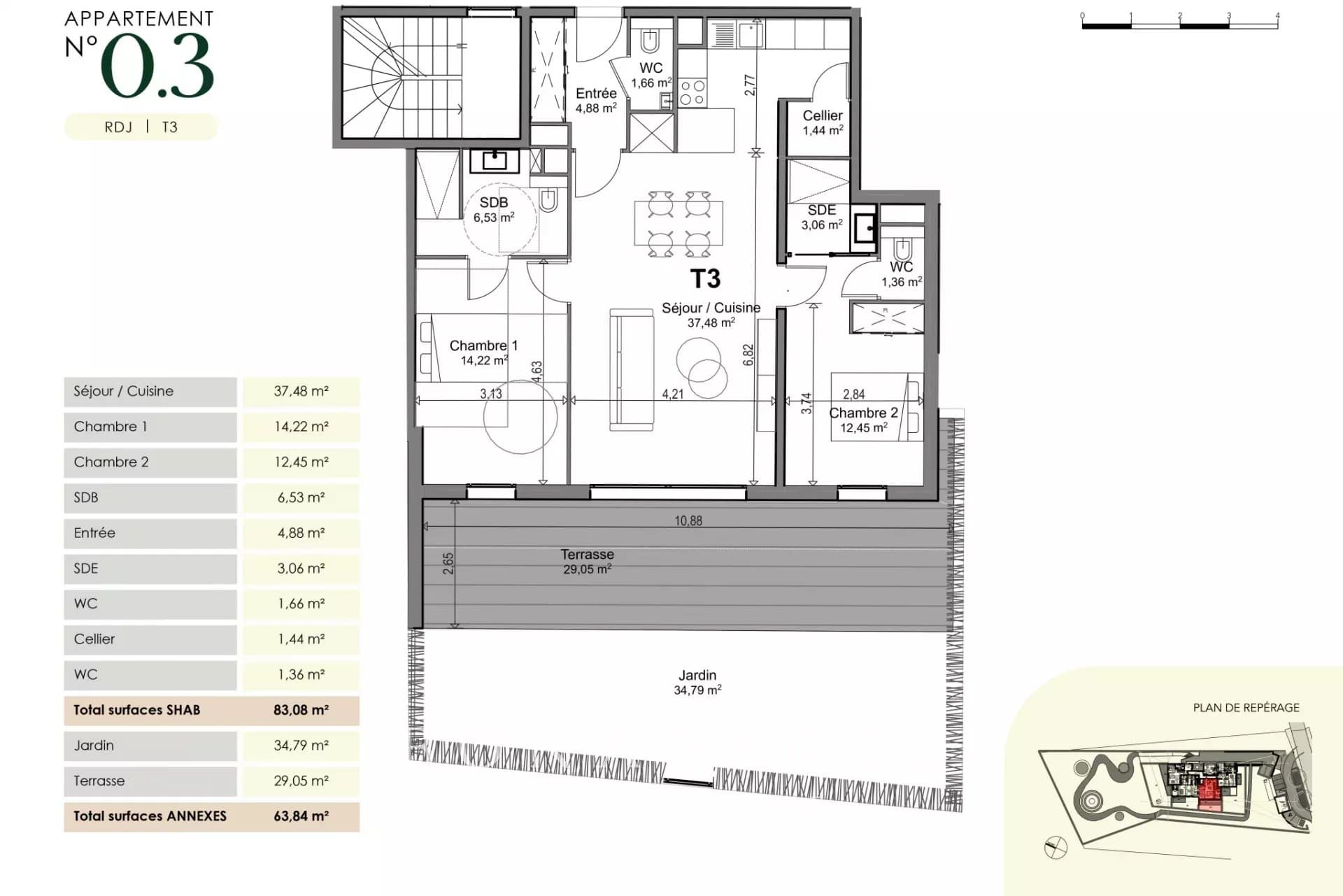
Ce superbe appartement 3 pièces de 83 m² en rez-de-jardin offre de magnifiques volumes, avec une pièce de vie lumineuse de plus de 37 m² ouverte sur un agréable jardin privatif de plus de 34 m², idéal pour profiter pleinement de l’extérieur dans un cadre naturel privilégié.
L’espace nuit se compose de deux véritables suites, chacune avec sa salle d’eau privative et ses toilettes, complétées par un WC invités pour plus de confort.
Villa EmmaSwing est une résidence exclusive de seulement 7 appartements haut de gamme, alliant l’esprit d’une villa individuelle à la praticité d’un appartement contemporain.
Chaque détail a été pensé pour offrir un art de vivre rare :
• Emplacement recherché au sein du Golf de Valescure
• Environnement paisible et verdoyant
• Résidence sécurisée
• Prestations premium et matériaux de qualité
• Accompagnement personnalisé par une décoratrice d’intérieur
• Équipements domotiques
• Stationnements haut de gamme : garage double carrelé avec porte motorisée
Un bien rare, idéal en résidence principale comme en résidence secondaire de standing, dans l’un des secteurs les plus prisés de Saint-Raphaël.
Dossier de présentation complet sur demande.
Le DPE sera fourni à l'achèvement de la construction.

Montant estimé des dépenses annuelles d'énergie pour un usage standard :
Entre 2025 € et 2025 € par an
Prix moyens des énergies indexés au 1er janvier 2021 (abonnement compris)
795 000 €








STEPHANE GAMBIRASIO
+33 (0)6 11 50 79 61
s.gambirasio@bonaparte-artdevivre.com
https://www.stephanegambirasio.com/
Non inclus dans le prix : frais de notaire (droits d’enregistrement). Document non contractuel établi d’après indications fournies par le propriétaire, il est fourni à titre indicatif sous réserve de confirmation des informations par documents administratifs ou contractuels respectifs, il ne saurait engager notre responsabilité.