
Vignieu, 38890
44 Chambres - 5000 m2 intérieur
13 000 000 €
Découvrir449 000 €
Paris 18ème, 75018
449 000 €
Paris 18ème, 75018
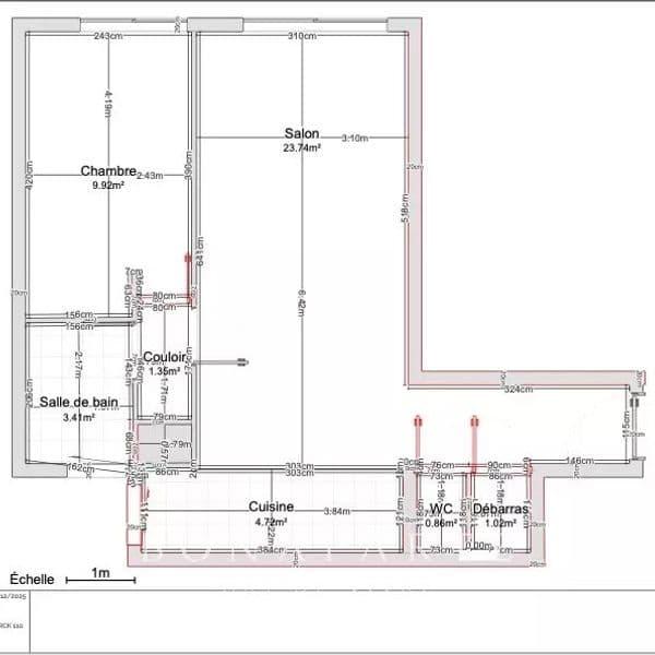
Situé dans la rue Lamarck, à proximité du métro Lamarck-Caulaincourt et des commerces de bouche, cet appartement de 44 m² est calme et lumineux, il comprend une entrée avec placard, un toilette indépendant, un séjour avec espace cuisine, une chambre et un espace salle d'eau. La plomberie et l’électricité ont été entièrement refaites. Le parquet, le ballon d’eau chaude et les fenêtres en double vitrage viennent d’être changés.Il est situé au 2e étage avec ascenseur d’une copropriété parfaitement entretenue, comprenant une grande majorité de copropriétaires occupants.Les charges de copropriété sont de 121 € / mois ; elles comprennent l’entretien des parties communes, l’ascenseur, l’eau froide et le fonds de travaux obligatoire.Son DPE est en C.
La photo meublée est une projection de la pièce de vie.
Vous souhaitez le visiter ? Contactez-moi.
55 kWhEF/m².an (A) (Energie finale)
Diagnostic réalisé le 13 octobre 2025
Montant estimé des dépenses annuelles d'énergie pour un usage standard :
Entre 530 € et 720 € par an
Prix moyens des énergies indexés au 1er janvier 2021 (abonnement compris)
CHARLOTTE MOLINA répondra personnellement à votre demande, envoyez-lui un email
Appelez-nous : +33 (0)6 49 04 64 24




44 Chambres - 5000 m2 intérieur
13 000 000 €
Découvrir
5 Chambres - 398 m2 intérieur
9 900 000 €
Découvrir
8 Chambres - 520 m2 intérieur
6 980 000 €
Découvrir
Situé dans la rue Lamarck, à proximité du métro Lamarck-Caulaincourt et des commerces de bouche, cet appartement de 44 m² est calme et lumineux, il comprend une entrée avec placard, un toilette indépendant, un séjour avec espace cuisine, une chambre et un espace salle d'eau. La plomberie et l’électricité ont été entièrement refaites. Le parquet, le ballon d’eau chaude et les fenêtres en double vitrage viennent d’être changés.Il est situé au 2e étage avec ascenseur d’une copropriété parfaitement entretenue, comprenant une grande majorité de copropriétaires occupants.Les charges de copropriété sont de 121 € / mois ; elles comprennent l’entretien des parties communes, l’ascenseur, l’eau froide et le fonds de travaux obligatoire.Son DPE est en C.
La photo meublée est une projection de la pièce de vie.
Vous souhaitez le visiter ? Contactez-moi.

55 kWhEF/m².an (A) (Energie finale)
Diagnostic réalisé le 13 octobre 2025
Montant estimé des dépenses annuelles d'énergie pour un usage standard :
Entre 530 € et 720 € par an
Prix moyens des énergies indexés au 1er janvier 2021 (abonnement compris)
449 000 €



CHARLOTTE MOLINA
+33 (0)6 49 04 64 24
c.molina@bonaparte-artdevivre.com
https://www.charlottemolina.com/
Non inclus dans le prix : frais de notaire (droits d’enregistrement). Document non contractuel établi d’après indications fournies par le propriétaire, il est fourni à titre indicatif sous réserve de confirmation des informations par documents administratifs ou contractuels respectifs, il ne saurait engager notre responsabilité.