
Vignieu, 38890
44 Chambres - 5000 m2 intérieur
13 000 000 €
Découvrir1 019 000 €
Saint-Raphaël, 83700
1 019 000 €
Saint-Raphaël, 83700
Un projet confidentiel au coeur du Golf de Valescure : nichée dans un environnement verdoyant et sécurisé, Villa EmmaSwing vous accueille dans un domaine intimiste et préservé.
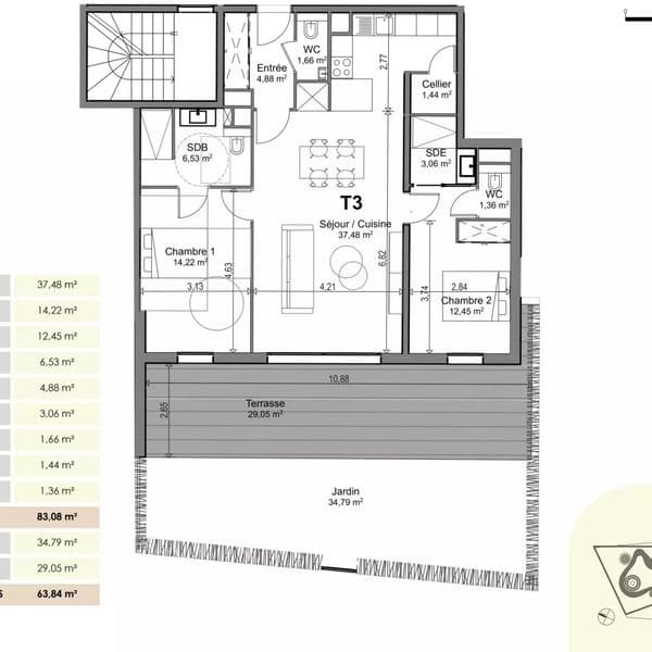
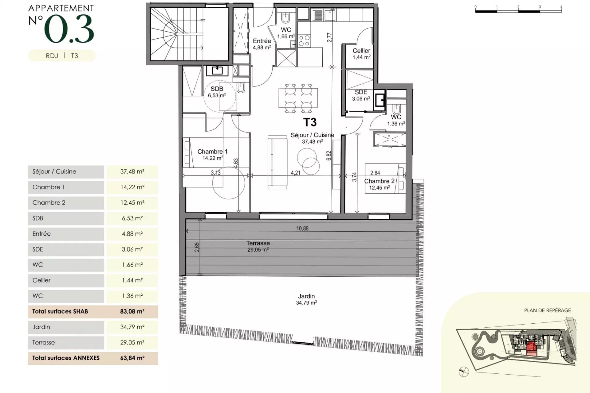
Cet appartement T3 de 83m² situé au rez-de-jardin, se compose d'une pièce à vivre de plus de 37m², de deux chambres en suite avec salle d'eau privative et toilette, d'un toilette invité, ainsi qu'un jardin d'une superficie de plus de 34m².
Découvrez un art de vivre rare, entre nature préservée et raffinement absolu. Villa Emma Swing vous propose une résidence exclusive composée de seulement 7 appartements haut de gamme, conçus pour celles et ceux qui souhaitent conjuguer l’élégance d’une villa avec le confort d’un appartement.
Volumes généreux, prestations personnalisées, sécurité… chaque détail est pensé pour sublimer votre quotidien :
- Un emplacement recherché
- Un environnement calme et raffiné
- Une résidence sécurisée, et gardien à demeure
- Des matériaux nobles et un accompagnement exclusif avec une décoratrice d'intérieur
- De la domotique
- Des stationnements haut de gamme (garage double carrelé avec porte motorisée)
- Etc...
Dossier de présentation complet sur demande.
Le DPE sera fourni à l'achèvement de la construction.
Montant estimé des dépenses annuelles d'énergie pour un usage standard :
Entre 2025 € et 2025 € par an
Prix moyens des énergies indexés au 1er janvier 2021 (abonnement compris)
STEPHANE GAMBIRASIO répondra personnellement à votre demande, envoyez-lui un email
Appelez-nous : +33 (0)6 11 50 79 61








44 Chambres - 5000 m2 intérieur
13 000 000 €
Découvrir
6 Chambres - 398 m2 intérieur
9 900 000 €
Découvrir
4 Chambres - 360 m2 intérieur
6 500 000 €
Découvrir
Un projet confidentiel au coeur du Golf de Valescure : nichée dans un environnement verdoyant et sécurisé, Villa EmmaSwing vous accueille dans un domaine intimiste et préservé.
Cet appartement T3 de 83m² situé au rez-de-jardin, se compose d'une pièce à vivre de plus de 37m², de deux chambres en suite avec salle d'eau privative et toilette, d'un toilette invité, ainsi qu'un jardin d'une superficie de plus de 34m².
Découvrez un art de vivre rare, entre nature préservée et raffinement absolu. Villa Emma Swing vous propose une résidence exclusive composée de seulement 7 appartements haut de gamme, conçus pour celles et ceux qui souhaitent conjuguer l’élégance d’une villa avec le confort d’un appartement.
Volumes généreux, prestations personnalisées, sécurité… chaque détail est pensé pour sublimer votre quotidien :
- Un emplacement recherché
- Un environnement calme et raffiné
- Une résidence sécurisée, et gardien à demeure
- Des matériaux nobles et un accompagnement exclusif avec une décoratrice d'intérieur
- De la domotique
- Des stationnements haut de gamme (garage double carrelé avec porte motorisée)
- Etc...
Dossier de présentation complet sur demande.
Le DPE sera fourni à l'achèvement de la construction.

Montant estimé des dépenses annuelles d'énergie pour un usage standard :
Entre 2025 € et 2025 € par an
Prix moyens des énergies indexés au 1er janvier 2021 (abonnement compris)
1 019 000 €







STEPHANE GAMBIRASIO
+33 (0)6 11 50 79 61
s.gambirasio@bonaparte-artdevivre.com
https://www.stephanegambirasio.com/
Non inclus dans le prix : frais de notaire (droits d’enregistrement). Document non contractuel établi d’après indications fournies par le propriétaire, il est fourni à titre indicatif sous réserve de confirmation des informations par documents administratifs ou contractuels respectifs, il ne saurait engager notre responsabilité.