
Ramatuelle · 83350
15 900 000 €
6 Chambres · 506 m2 intérieur
680 000 €
Agde, 34300
680 000 €
Agde, 34300
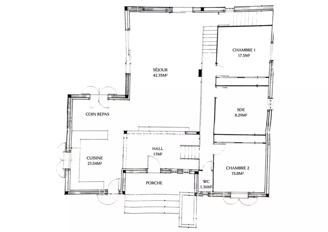
Au Grau d’Agde, dans un environnement résidentiel calme et agréable, cette maison d’environ 198 m² propose un cadre de vie confortable à quelques minutes des plages, des commerces et des commodités.
Implantée sur un terrain clos et arboré de 1000 m², la propriété offre plusieurs espaces extérieurs pensés pour profiter pleinement des beaux jours : une cuisine d’été avec bar pour les repas en plein air, un jardin paysager alimenté par forage, une salle de sport indépendante ainsi qu’un chalet pouvant accueillir famille ou amis. Le terrain est également piscinable.
La maison principale s’organise autour d’un séjour cathédrale avec cheminée insert, apportant volume et luminosité à l’espace de vie. La cuisine ouverte prolonge naturellement cette pièce et crée un ensemble convivial et fonctionnel.
L’espace nuit comprend deux chambres avec rangements, dont une avec dressing et une avec accès à un solarium, ainsi qu’une salle d’eau avec douche à l’italienne et double vasque.
En rez-de-jardin, une dépendance d’environ 43 m² composée d’une chambre, d’un bureau, d’une salle d’eau et d’un WC permet d’envisager différents usages : logement indépendant, espace professionnel ou accueil des proches.
Un garage de 39 m² avec espace atelier complète l’ensemble.
Une maison aux volumes intéressants, offrant plusieurs possibilités d’aménagement dans un secteur recherché du Grau d’Agde. Pour plus d’informations ou organiser une visite, je reste à votre disposition.
Les informations sur les risques auxquels ce bien est exposé sont disponibles sur le site Géorisques : www.georisques.gouv.fr
34.7 kWhEF/m².an (Energie finale)
Diagnostic réalisé le 11 février 2025
Montant estimé des dépenses annuelles d'énergie pour un usage standard :
Entre 1160 € et 1650 € par an
Prix moyens des énergies indexés au 1er janvier 2021 (abonnement compris)
YOHAN BRAS répondra personnellement à votre demande, envoyez-lui un email
Appelez-nous :
+33 (0)6 68 02 05 20










Au Grau d’Agde, dans un environnement résidentiel calme et agréable, cette maison d’environ 198 m² propose un cadre de vie confortable à quelques minutes des plages, des commerces et des commodités.
Implantée sur un terrain clos et arboré de 1000 m², la propriété offre plusieurs espaces extérieurs pensés pour profiter pleinement des beaux jours : une cuisine d’été avec bar pour les repas en plein air, un jardin paysager alimenté par forage, une salle de sport indépendante ainsi qu’un chalet pouvant accueillir famille ou amis. Le terrain est également piscinable.
La maison principale s’organise autour d’un séjour cathédrale avec cheminée insert, apportant volume et luminosité à l’espace de vie. La cuisine ouverte prolonge naturellement cette pièce et crée un ensemble convivial et fonctionnel.
L’espace nuit comprend deux chambres avec rangements, dont une avec dressing et une avec accès à un solarium, ainsi qu’une salle d’eau avec douche à l’italienne et double vasque.
En rez-de-jardin, une dépendance d’environ 43 m² composée d’une chambre, d’un bureau, d’une salle d’eau et d’un WC permet d’envisager différents usages : logement indépendant, espace professionnel ou accueil des proches.
Un garage de 39 m² avec espace atelier complète l’ensemble.
Une maison aux volumes intéressants, offrant plusieurs possibilités d’aménagement dans un secteur recherché du Grau d’Agde. Pour plus d’informations ou organiser une visite, je reste à votre disposition.

Les informations sur les risques auxquels ce bien est exposé sont disponibles sur le site Géorisques : www.georisques.gouv.fr
34.7 kWhEF/m².an (Energie finale)
Diagnostic réalisé le 11 février 2025
Montant estimé des dépenses annuelles d'énergie pour un usage standard :
Entre 1160 € et 1650 € par an
Prix moyens des énergies indexés au 1er janvier 2021 (abonnement compris)
680 000 €








YOHAN BRAS
+33 (0)6 68 02 05 20
y.bras@bonaparte-artdevivre.com
https://yohanbras.com/
Non inclus dans le prix : frais de notaire (droits d’enregistrement). Document non contractuel établi d’après indications fournies par le propriétaire, il est fourni à titre indicatif sous réserve de confirmation des informations par documents administratifs ou contractuels respectifs, il ne saurait engager notre responsabilité.