
Vignieu, 38890
44 Chambres - 5000 m2 intérieur
13 000 000 €
Découvrir720 000 €
Béziers, 34500
720 000 €
Béziers, 34500
L’extérieur séduit dès les premiers instants : parcelle paysagée de plus de 400 m², piscine chauffée avec cascade, arrosage automatique, éclairage intégré et plusieurs terrasses pour profiter pleinement des beaux jours. Le stationnement est aisé avec un grand garage carrelé et climatisé, ainsi que plusieurs places extérieures.
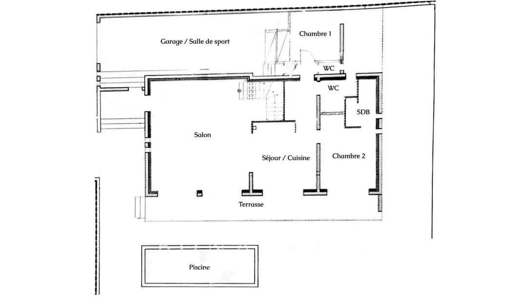
Construite récemment avec des matériaux de qualité, la maison développe environ 202 m² habitables. Le vaste séjour de 67 m² avec cheminée design et grandes baies vitrées baigne de lumière naturelle. La cuisine ouverte, moderne et parfaitement équipée avec îlot central, communique directement avec la pièce de vie et la buanderie attenante.
La maison comprend 4 chambres, dont 2 suites de plain-pied avec dressing, ainsi qu’un bureau. À l’étage, deux suites supplémentaires, dont l’une avec spa privé, s’ouvrent sur une grande terrasse.
Les prestations sont au rendez-vous : climatisation réversible, volets roulants centralisés, chauffe-eau thermodynamique, alarme, vidéophone, fibre, salle de sport, salle de bains avec jacuzzi, trois salles d’eau avec douches à l’italienne, cinq WC.
Un bien rare, alliant design, confort et fonctionnalité, dans un environnement privilégié. Dossier complet et visite sur demande.
25 kWhEF/m².an (A) (Energie finale)
Diagnostic réalisé le 12 février 2025
Montant estimé des dépenses annuelles d'énergie pour un usage standard :
Entre 780 € et 1070 € par an
Prix moyens des énergies indexés au 1er janvier 2021 (abonnement compris)
YOHAN BRAS répondra personnellement à votre demande, envoyez-lui un email
Appelez-nous : +33 (0)6 68 02 05 20









44 Chambres - 5000 m2 intérieur
13 000 000 €
Découvrir
6 Chambres - 398 m2 intérieur
9 900 000 €
Découvrir
4 Chambres - 360 m2 intérieur
6 500 000 €
Découvrir
L’extérieur séduit dès les premiers instants : parcelle paysagée de plus de 400 m², piscine chauffée avec cascade, arrosage automatique, éclairage intégré et plusieurs terrasses pour profiter pleinement des beaux jours. Le stationnement est aisé avec un grand garage carrelé et climatisé, ainsi que plusieurs places extérieures.
Construite récemment avec des matériaux de qualité, la maison développe environ 202 m² habitables. Le vaste séjour de 67 m² avec cheminée design et grandes baies vitrées baigne de lumière naturelle. La cuisine ouverte, moderne et parfaitement équipée avec îlot central, communique directement avec la pièce de vie et la buanderie attenante.
La maison comprend 4 chambres, dont 2 suites de plain-pied avec dressing, ainsi qu’un bureau. À l’étage, deux suites supplémentaires, dont l’une avec spa privé, s’ouvrent sur une grande terrasse.
Les prestations sont au rendez-vous : climatisation réversible, volets roulants centralisés, chauffe-eau thermodynamique, alarme, vidéophone, fibre, salle de sport, salle de bains avec jacuzzi, trois salles d’eau avec douches à l’italienne, cinq WC.
Un bien rare, alliant design, confort et fonctionnalité, dans un environnement privilégié. Dossier complet et visite sur demande.

25 kWhEF/m².an (A) (Energie finale)
Diagnostic réalisé le 12 février 2025
Montant estimé des dépenses annuelles d'énergie pour un usage standard :
Entre 780 € et 1070 € par an
Prix moyens des énergies indexés au 1er janvier 2021 (abonnement compris)
720 000 €








YOHAN BRAS
+33 (0)6 68 02 05 20
y.bras@bonaparte-artdevivre.com
https://yohanbras.com/
Non inclus dans le prix : frais de notaire (droits d’enregistrement). Document non contractuel établi d’après indications fournies par le propriétaire, il est fourni à titre indicatif sous réserve de confirmation des informations par documents administratifs ou contractuels respectifs, il ne saurait engager notre responsabilité.