
Vignieu, 38890
44 Chambres - 5000 m2 intérieur
13 000 000 €
Découvrir680 000 €
Agde, 34300
680 000 €
Agde, 34300
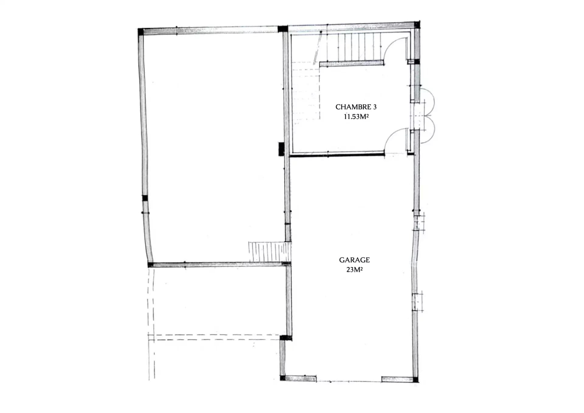
Située dans un quartier résidentiel recherché du Grau d’Agde, cette maison de 198 m² offre un cadre de vie agréable à seulement quelques minutes des plages, des commerces et des écoles.
Édifiée sur un terrain de 1000 m² entièrement clos et paysagé, elle séduit par ses beaux volumes et ses nombreux espaces extérieurs : une cuisine d’été avec bar, une salle de sport indépendante, un chalet d’invités et un forage. Le terrain, piscinable, permet d’aménager un véritable espace détente selon vos envies.
À l’intérieur, le séjour cathédrale avec cheminée insert profite d’une belle luminosité et d’un volume rare. La cuisine ouverte s’intègre harmonieusement à la pièce de vie pour plus de convivialité et de confort au quotidien.
La maison principale comprend deux chambres, dont une avec dressing et l’autre avec solarium privatif, une salle d’eau avec douche à l’italienne et double vasque, ainsi qu’un WC séparé.
En rez-de-jardin, un espace indépendant de 43 m² accueille une chambre, un bureau, une salle d’eau et un WC. Cet espace est idéal pour recevoir, télétravailler ou héberger un proche en toute autonomie. Un garage de 39 m² avec atelier complète l’ensemble.
Une maison lumineuse et fonctionnelle, dans un environnement paisible à deux pas de la mer. Contactez-moi dès aujourd’hui pour organiser une visite.
34.7 kWhEF/m².an (A) (Energie finale)
Diagnostic réalisé le 11 février 2025
Montant estimé des dépenses annuelles d'énergie pour un usage standard :
Entre 1160 € et 1650 € par an
Prix moyens des énergies indexés au 1er janvier 2021 (abonnement compris)
YOHAN BRAS répondra personnellement à votre demande, envoyez-lui un email
Appelez-nous : +33 (0)6 68 02 05 20









44 Chambres - 5000 m2 intérieur
13 000 000 €
Découvrir
5 Chambres - 398 m2 intérieur
9 900 000 €
Découvrir
8 Chambres - 520 m2 intérieur
6 980 000 €
Découvrir
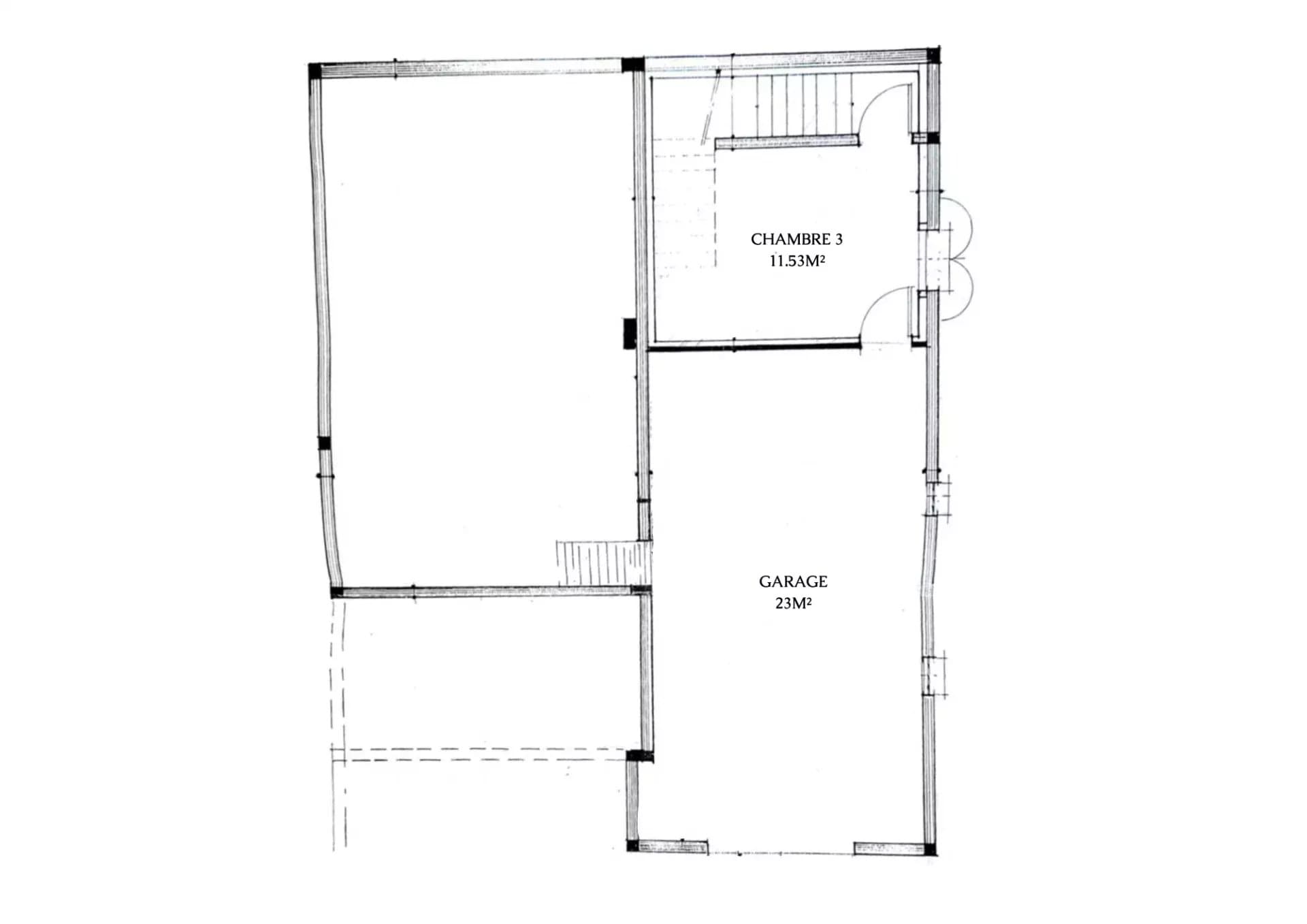
Située dans un quartier résidentiel recherché du Grau d’Agde, cette maison de 198 m² offre un cadre de vie agréable à seulement quelques minutes des plages, des commerces et des écoles.
Édifiée sur un terrain de 1000 m² entièrement clos et paysagé, elle séduit par ses beaux volumes et ses nombreux espaces extérieurs : une cuisine d’été avec bar, une salle de sport indépendante, un chalet d’invités et un forage. Le terrain, piscinable, permet d’aménager un véritable espace détente selon vos envies.
À l’intérieur, le séjour cathédrale avec cheminée insert profite d’une belle luminosité et d’un volume rare. La cuisine ouverte s’intègre harmonieusement à la pièce de vie pour plus de convivialité et de confort au quotidien.
La maison principale comprend deux chambres, dont une avec dressing et l’autre avec solarium privatif, une salle d’eau avec douche à l’italienne et double vasque, ainsi qu’un WC séparé.
En rez-de-jardin, un espace indépendant de 43 m² accueille une chambre, un bureau, une salle d’eau et un WC. Cet espace est idéal pour recevoir, télétravailler ou héberger un proche en toute autonomie. Un garage de 39 m² avec atelier complète l’ensemble.
Une maison lumineuse et fonctionnelle, dans un environnement paisible à deux pas de la mer. Contactez-moi dès aujourd’hui pour organiser une visite.

34.7 kWhEF/m².an (A) (Energie finale)
Diagnostic réalisé le 11 février 2025
Montant estimé des dépenses annuelles d'énergie pour un usage standard :
Entre 1160 € et 1650 € par an
Prix moyens des énergies indexés au 1er janvier 2021 (abonnement compris)
680 000 €








YOHAN BRAS
+33 (0)6 68 02 05 20
y.bras@bonaparte-artdevivre.com
https://yohanbras.com/
Non inclus dans le prix : frais de notaire (droits d’enregistrement). Document non contractuel établi d’après indications fournies par le propriétaire, il est fourni à titre indicatif sous réserve de confirmation des informations par documents administratifs ou contractuels respectifs, il ne saurait engager notre responsabilité.