
Ramatuelle, 83350
6 Bedrooms - 542 m2 inside
18 000 000 €
Read more1 165 000 €
Saint-Raphaël, 83700
1 165 000 €
Saint-Raphaël, 83700
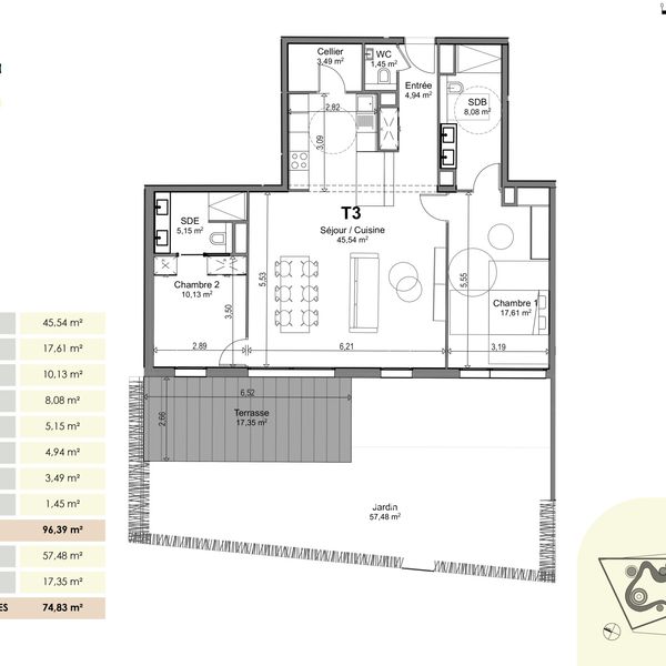
A confidential project in the heart of the Valescure Golf Course: nestled in a green and secure environment, Villa EmmaSwing welcomes you to an intimate and preserved estate. This 96m2 two-bedroom apartment, located on the ground floor, consists of a living room of over 45m2, two en-suite bedrooms, each with its own bathroom and toilet, and a 57m2 garden. Discover a rare art of living, combining unspoiled nature and absolute refinement. Villa Emma Swing offers an exclusive residence composed of only seven high-end apartments, designed for those who wish to combine the elegance of a villa with the comfort of an apartment. Generous volumes, personalized services, security, concierge service... every detail is designed to enhance your daily life: - A sought-after location - A calm and refined environment - A secure residence, with a live-in caretaker - Noble materials and exclusive support with an interior designer - Home automation - High-end parking - Etc... Complete presentation file on request.
STEPHANE GAMBIRASIO will personally respond to your request send him an email
Call us: +33 (0)6 11 50 79 61








6 Bedrooms - 542 m2 inside
18 000 000 €
Read more
44 Bedrooms - 5000 m2 inside
13 000 000 €
Read more
7 Bedrooms - 485 m2 inside
9 950 000 €
Read more
A confidential project in the heart of the Valescure Golf Course: nestled in a green and secure environment, Villa EmmaSwing welcomes you to an intimate and preserved estate. This 96m2 two-bedroom apartment, located on the ground floor, consists of a living room of over 45m2, two en-suite bedrooms, each with its own bathroom and toilet, and a 57m2 garden. Discover a rare art of living, combining unspoiled nature and absolute refinement. Villa Emma Swing offers an exclusive residence composed of only seven high-end apartments, designed for those who wish to combine the elegance of a villa with the comfort of an apartment. Generous volumes, personalized services, security, concierge service... every detail is designed to enhance your daily life: - A sought-after location - A calm and refined environment - A secure residence, with a live-in caretaker - Noble materials and exclusive support with an interior designer - Home automation - High-end parking - Etc... Complete presentation file on request.

1 165 000 €







STEPHANE GAMBIRASIO
+33 (0)6 11 50 79 61
s.gambirasio@bonaparte-artdevivre.com
https://www.stephanegambirasio.com/
Non inclus dans le prix : frais de notaire (droits d’enregistrement). Document non contractuel établi d’après indications fournies par le propriétaire, il est fourni à titre indicatif sous réserve de confirmation des informations par documents administratifs ou contractuels respectifs, il ne saurait engager notre responsabilité.