
La Verdière, 83560
25 Bedrooms - 5000 m2 inside
15 750 500 €
Read more680 000 €
Agde, 34300
680 000 €
Agde, 34300
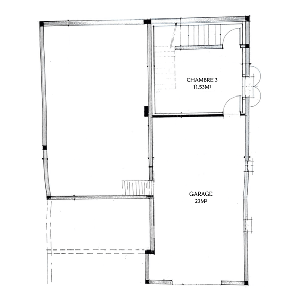
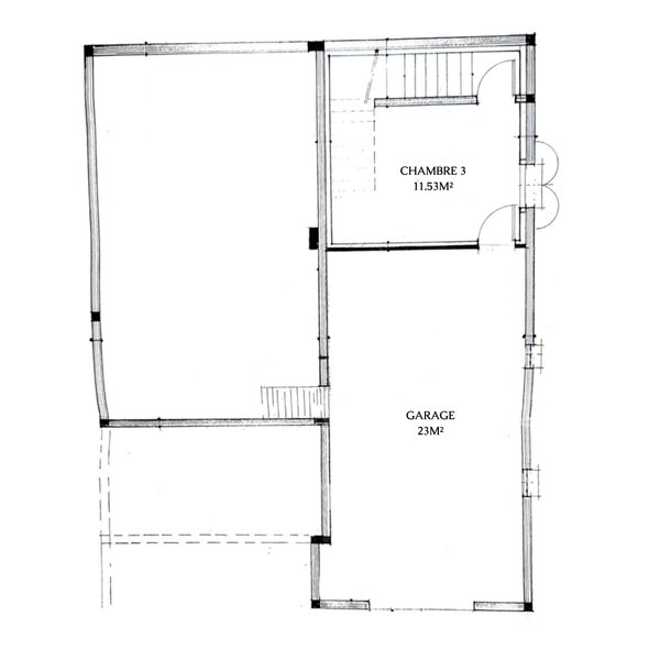
Située dans un quartier résidentiel recherché du Grau d'Agde, cette maison de 198 m2 offre un cadre de vie agréable à seulement quelques minutes des plages, des commerces et des écoles.
Édifiée sur un terrain de 1000 m2 entièrement clos et paysagé, elle séduit par ses beaux volumes et ses nombreux espaces extérieurs : une cuisine d'été avec bar, une salle de sport indépendante, un chalet d'invités et un forage. Le terrain, piscinable, permet d'aménager un véritable espace détente selon vos envies.
À l'intérieur, le séjour cathédrale avec cheminée insert profite d'une belle luminosité et d'un volume rare. La cuisine ouverte s'intègre harmonieusement à la pièce de vie pour plus de convivialité et de confort au quotidien.
La maison principale comprend deux chambres, dont une avec dressing et l'autre avec solarium privatif, une salle d'eau avec douche à l'italienne et double vasque, ainsi qu'un WC séparé.
En rez-de-jardin, un espace indépendant de 43 m2 accueille une chambre, un bureau, une salle d'eau et un WC. Cet espace est idéal pour recevoir, télétravailler ou héberger un proche en toute autonomie. Un garage de 39 m2 avec atelier complète l'ensemble.
Une maison lumineuse et fonctionnelle, dans un environnement paisible à deux pas de la mer. Contactez-moi dès aujourd'hui pour organiser une visite.
Cette annonce vous est proposée par Yohan BRAS - maison BONAPARTE - EI - NoRSAC: 891 153 546 , Enregistré à Greffe du tribunal de commerce de Béziers
- Annonce rédigée et publiée par un Agent Mandataire -
Montant estimé des dépenses annuelles d'énergie pour un usage standard :
Entre 1160 € et 1650 € par an
Prix moyens des énergies indexés au 1er janvier 2021 (abonnement compris)
YOHAN BRAS will personally respond to your request send him an email
Call us: +33 (0)6 68 02 05 20









25 Bedrooms - 5000 m2 inside
15 750 500 €
Read more
12 Bedrooms - 760 m2 inside
14 840 000 €
Read more
44 Bedrooms - 5000 m2 inside
13 000 000 €
Read more
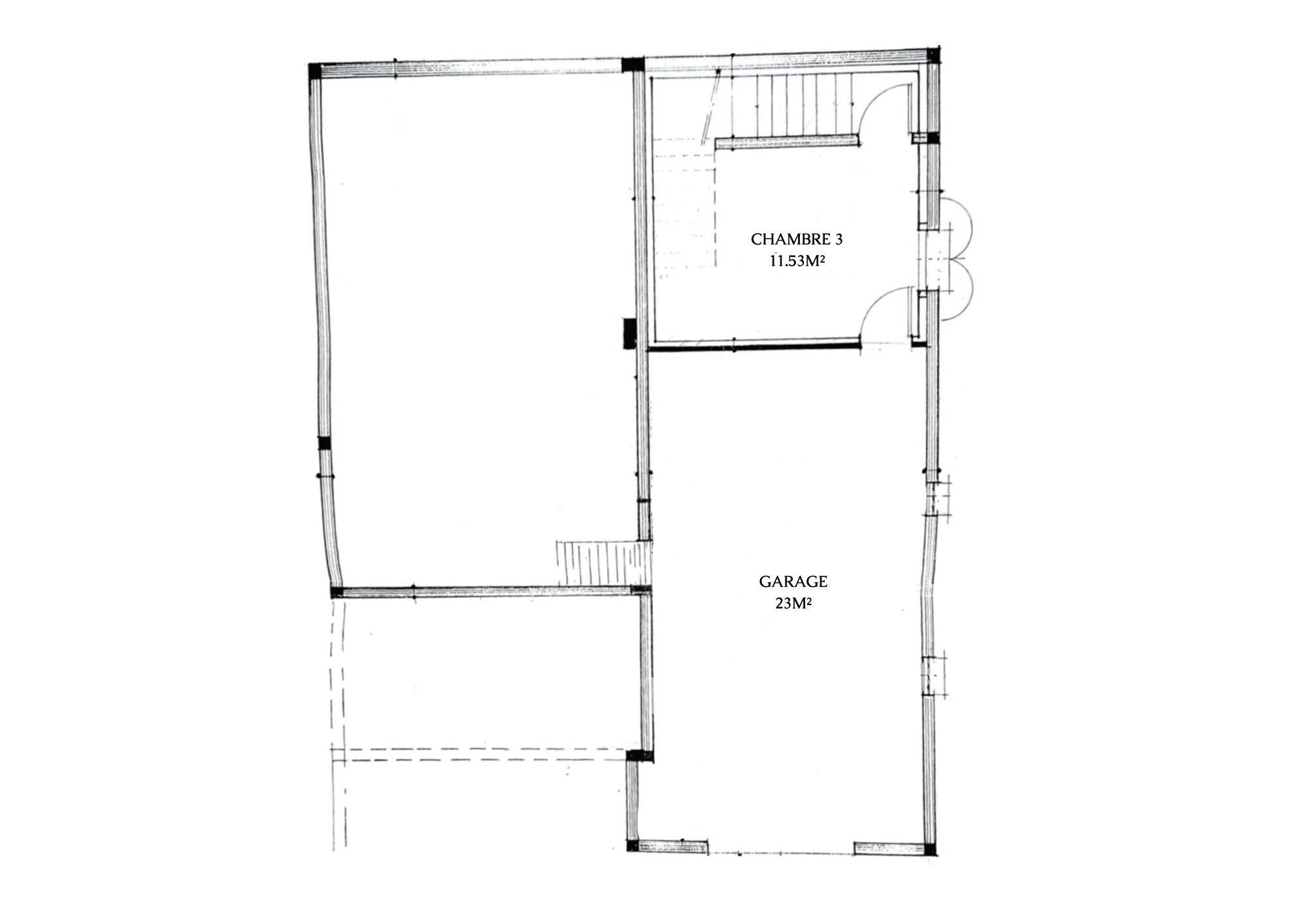
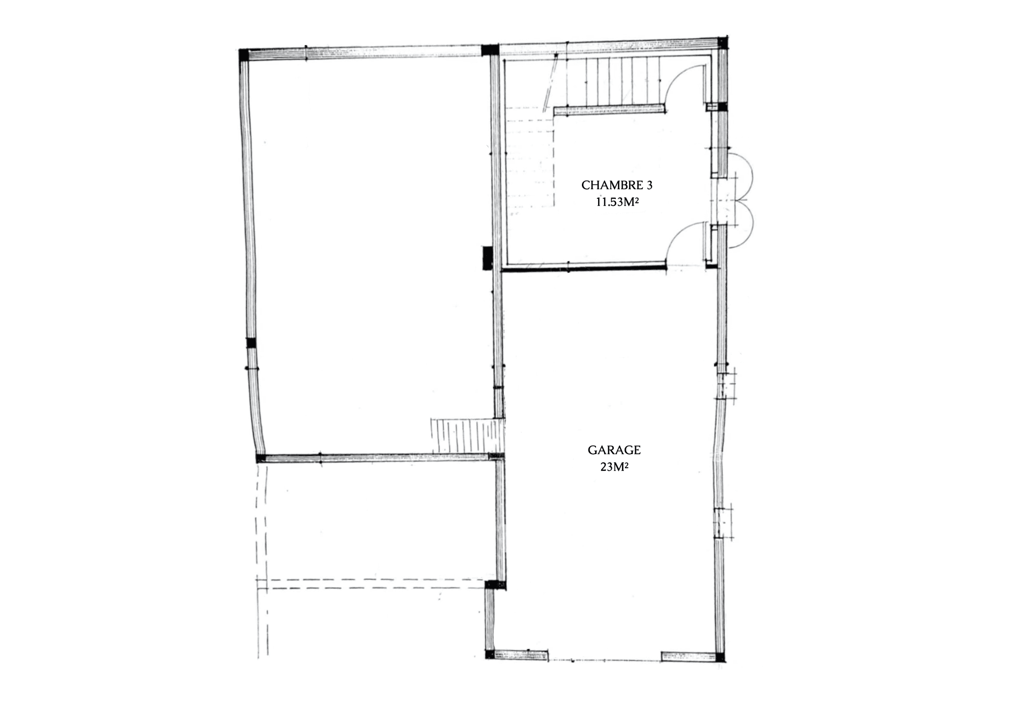
Située dans un quartier résidentiel recherché du Grau d'Agde, cette maison de 198 m2 offre un cadre de vie agréable à seulement quelques minutes des plages, des commerces et des écoles.
Édifiée sur un terrain de 1000 m2 entièrement clos et paysagé, elle séduit par ses beaux volumes et ses nombreux espaces extérieurs : une cuisine d'été avec bar, une salle de sport indépendante, un chalet d'invités et un forage. Le terrain, piscinable, permet d'aménager un véritable espace détente selon vos envies.
À l'intérieur, le séjour cathédrale avec cheminée insert profite d'une belle luminosité et d'un volume rare. La cuisine ouverte s'intègre harmonieusement à la pièce de vie pour plus de convivialité et de confort au quotidien.
La maison principale comprend deux chambres, dont une avec dressing et l'autre avec solarium privatif, une salle d'eau avec douche à l'italienne et double vasque, ainsi qu'un WC séparé.
En rez-de-jardin, un espace indépendant de 43 m2 accueille une chambre, un bureau, une salle d'eau et un WC. Cet espace est idéal pour recevoir, télétravailler ou héberger un proche en toute autonomie. Un garage de 39 m2 avec atelier complète l'ensemble.
Une maison lumineuse et fonctionnelle, dans un environnement paisible à deux pas de la mer. Contactez-moi dès aujourd'hui pour organiser une visite.
Cette annonce vous est proposée par Yohan BRAS - maison BONAPARTE - EI - NoRSAC: 891 153 546 , Enregistré à Greffe du tribunal de commerce de Béziers
- Annonce rédigée et publiée par un Agent Mandataire -

Montant estimé des dépenses annuelles d'énergie pour un usage standard :
Entre 1160 € et 1650 € par an
Prix moyens des énergies indexés au 1er janvier 2021 (abonnement compris)
680 000 €








YOHAN BRAS
+33 (0)6 68 02 05 20
y.bras@bonaparte-artdevivre.com
https://yohanbras.com/
Non inclus dans le prix : frais de notaire (droits d’enregistrement). Document non contractuel établi d’après indications fournies par le propriétaire, il est fourni à titre indicatif sous réserve de confirmation des informations par documents administratifs ou contractuels respectifs, il ne saurait engager notre responsabilité.